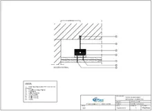
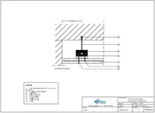
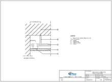
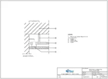
Descarga de documentación Documents Aplicar Filtrar por: (-) Mostrar todo Producto Documentación general Sistema Fichas Técnicas Detalles Constructivos Objetos BIM Product Certificate DAP (ES) Declaración de Prestaciones del Producto Catalogos, Manuales y Guias Certificaciones y Documentación Documentación Sostenibilidad Safety data sheet Lista de precios Documentación Grupo Saint-Gobain Declaración de Prestaciones del Producto DoP Filtrar el resultado Restablecer Aplicar filtro Limpiar filtros Seleccionar todo Descargar selección label Detalles Constructivos Tratamiento del plénum; colocación de aislamiento en el perímetro del falso techo sobre placa. Techo suspendido con estructura metálica; formado por horquilla de cuelgue rigi 60 con varilla roscada M6 y perfil rigi 60 (PDF) .pdf | 83.40 KB Visualizar Descargar label Detalles Constructivos Techo suspendido con estructura metálica; formado por suspensión Stil Prim 100, con varilla roscada M6 y Stil Prim 100. Encuentro de tabique apoyado sobre forjado y sobre solera rigidur (DWG) .dwg | 65.88 KB Visualizar Descargar label Detalles Constructivos Techo suspendido con estructura metálica; formado por suspensión Stil Prim 100, con varilla roscada M6 y Stil Prim 100. Encuentro de tabique apoyado sobre forjado y sobre solera rigidur (PDF) .pdf | 119.02 KB Visualizar Descargar label Detalles Constructivos Techo suspendido con estructura metálica; formado por suspensión Stil Prim 100, con varilla roscada M6 y Stil Prim 100 (DWG) .dwg | 58.82 KB Visualizar Descargar label Detalles Constructivos Techo suspendido con estructura metálica; formado por suspensión Stil Prim 100, con varilla roscada M6 y Stil Prim 100 (PDF) .pdf | 108.43 KB Visualizar Descargar label Detalles Constructivos Techo suspendido con estructura metálica, formada por perfiles metálicos Stil Prim 50 con varilla roscada m6 y perfil F-530 (DWG) .dwg | 68.45 KB Visualizar Descargar label Detalles Constructivos Techo suspendido con estructura metálica, formada por perfiles metálicos Stil Prim 50 con varilla roscada M6 y perfil F-530 (PDF) .pdf | 194.64 KB Visualizar Descargar label Detalles Constructivos Paso de instalaciones por Plénum; conducto de ventilación anclado a forjado. Techo suspendido con perfilería perfil F-530 y horquilla de cuelgue F-530, anclando a forjado mediante varilla roscada M6 (DWG) .dwg | 94.89 KB Visualizar Descargar label Detalles Constructivos Paso de instalaciones por Plénum; conducto de ventilación anclado a forjado. Techo suspendido con perfilería perfil F-530 y horquilla de cuelgue F-530, anclando a forjado mediante varilla roscada M6 (PDF) .pdf | 328.37 KB Visualizar Descargar Pagination First page Página anterior … Page 116 Page 117 Page 118 Page 119 Page 120 of 139 Current page 120 Page 121 Page 122 Page 123 Page 124 … Next page Last page