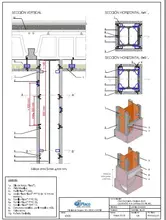
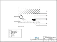
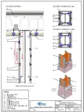
Descarga de documentación Documents Aplicar Filtrar por: (-) Mostrar todo Producto Documentación general Sistema Fichas Técnicas Detalles Constructivos Objetos BIM Product Certificate DAP (ES) Declaración de Prestaciones del Producto Catalogos, Manuales y Guias Certificaciones y Documentación Documentación Sostenibilidad Lista de precios Documentación Grupo Saint-Gobain Filtrar el resultado Restablecer Aplicar filtro Limpiar filtros Seleccionar todo Descargar selección label Detalles Constructivos Paso de instalaciones por Plénum; conducto de ventilación anclado a forjado. Techo suspendido con perfilería perfil F-530 y horquilla de cuelgue F-530, anclando a forjado mediante varilla roscada M6 (PDF) .pdf | 328.37 KB Visualizar Descargar label Detalles Constructivos Paso de instalaciones por Plénum. Techo suspendido con estructura metálica; formado por horquilla de cuelgue F-530 con varilla roscada M6 y perfil F-530 (DWG) .dwg | 62.22 KB Visualizar Descargar label Detalles Constructivos Paso de instalaciones por Plénum. Techo suspendido con estructura metálica; formado por horquilla de cuelgue F-530 con varilla roscada M6 y perfil F-530 (PDF) .pdf | 118.50 KB Visualizar Descargar label Detalles Constructivos Encuentro de techo suspendido con tabique. Falso techo con perfilería perfil F-530 y horquilla de cuelgue F-530, anclando a forjado mediante varilla roscada M6 (DWG) .dwg | 72.66 KB Visualizar Descargar label Detalles Constructivos Encuentro de techo suspendido con tabique. Falso techo con perfilería perfil F-530 y horquilla de cuelgue F-530, anclando a forjado mediante varilla roscada M6 (PDF) .pdf | 193.02 KB Visualizar Descargar label Detalles Constructivos Protección pasiva de estructuras metálicas, mediante cajeado de placas PPF fijadas con clips de fuego. Protección de elementos verticales, pilares (DWG) .dwg | 812.19 KB Visualizar Descargar label Detalles Constructivos Protección pasiva de estructuras metálicas, mediante cajeado de placas PPF fijadas con clips de fuego. Protección de elementos verticales, pilares (PDF) .pdf | 507.92 KB Visualizar Descargar label Detalles Constructivos Protección pasiva de estructuras metálicas, mediante cajeado de placas PPF fijadas con clips de fuego. Protección de elementos horizontales, vigas (DWG) .dwg | 515.81 KB Visualizar Descargar label Detalles Constructivos Protección pasiva de estructuras metálicas, mediante cajeado de placas PPF fijadas con clips de fuego. Protección de elementos horizontales, vigas (PDF) .pdf | 489.79 KB Visualizar Descargar Pagination First page Página anterior … Page 118 Page 119 Page 120 Page 121 Page 122 of 141 Current page 122 Page 123 Page 124 Page 125 Page 126 … Next page Last page